Moderne und komfortable Doppelhaushälfte in der Nähe von Landshut zu verkaufen

84032 Altdorf, Doppelhaushälfte zum Kauf

Kontaktdaten

Christine Krause, Pure Home Immobilien

Objektdaten

  • Objekt-ID
    5405
  • Objekttypen
    Doppelhaushälfte, Haus
  • Adresse
    84032 Altdorf
    Bayern
  • Etagen im Haus
    2
  • Wohnfläche ca.
    180 m²
  • Balkon-/Terrassen­fläche ca.
    50 m²
  • Grund­stück ca.
    469 m²
  • Zimmer
    5
  • Schlafzimmer
    3
  • Badezimmer
    2
  • Balkone
    1
  • Küche
    Einbauküche
  • Wesentlicher Energieträger
    Gas
  • Baujahr
    2001
  • Letzte Modernisierung
    2022
  • Zustand
    gepflegt
  • Ausstattung
    gehoben
  • Garagen­stellplätze
    2 Stellplätze
  • Käufer­provision
    3,57 % inkl. ges.MwSt.
    3%plus 19% MwSt.
  • Kaufpreis
    795.000 EUR

Ausstattung / Merkmale

  • ✓ Außenstellplatz
  • ✓ Badewanne
  • ✓ Balkon
  • ✓ Dusche
  • ✓ Einbauküche
  • ✓ Fliesenboden
  • ✓ Garage
  • ✓ Garten/Gartennutzung
  • ✓ Gäste-WC
  • ✓ Kamin
  • ✓ Keller
  • ✓ Parkettboden
  • ✓ Swimmingpool
  • ✓ Tageslichtbad
  • ✓ Wintergarten

Energieausweis

  • Energieausweistyp
    Verbrauchs­ausweis
  • Ausstellungsdatum
    16.10.2023
  • Gültig bis
    20.01.2036
  • Gebäudeart
    Wohngebäude
  • Baujahr
    2001
  • Primärenergieträger
    Gas
  • Endenergie­verbrauch
    62,81 kWh/(m²·a)
  • Energie­effizienz­klasse
    B
0 25 50 75 100 125 150 175 200 225 250+ H G F E D C B A A+ H G F E D C B A A+ Endenergieverbrauch 62,80 kWh/(m²·a)

Objekt­beschreibung

Beschreibung

Diese charmante Doppelhaushälfte bietet alles, was Sie für ein komfortables und modernes Wohnen benötigen.

Mit einer Wohnfläche von 160 m² und einem großzügigen Grundstück von 469 m² präsentiert sich diese Immobilie im gehobenen Stil und wurde zuletzt im Jahr 2022 modernisiert.

Die Highlights dieser Doppelhaushälfte:

  • 5 geräumige Zimmer, perfekt für Familien oder als Rückzugsort für Gäste
  • 2 Bäder, eines davon mit Wanne und eines mit Dusche
  • Hochwertiger Bodenbelag mit Fliesen und Parkett
  • Garage und zusätzlicher Außenstellplatz für Ihre Fahrzeuge
  • voll unterkellert, teilweise beheizt, ideal für kreatives Arbeiten
  • Gäste-WC für Ihre Besucher
  • Voll ausgestattete Einbauküche mit modernen Geräten
  • Ausgebautes Dachgeschoss, circa 40 m², mit maßgefertigten Einbauschränken
  • Idyllischer Garten, ideal für entspannte Stunden im Freien
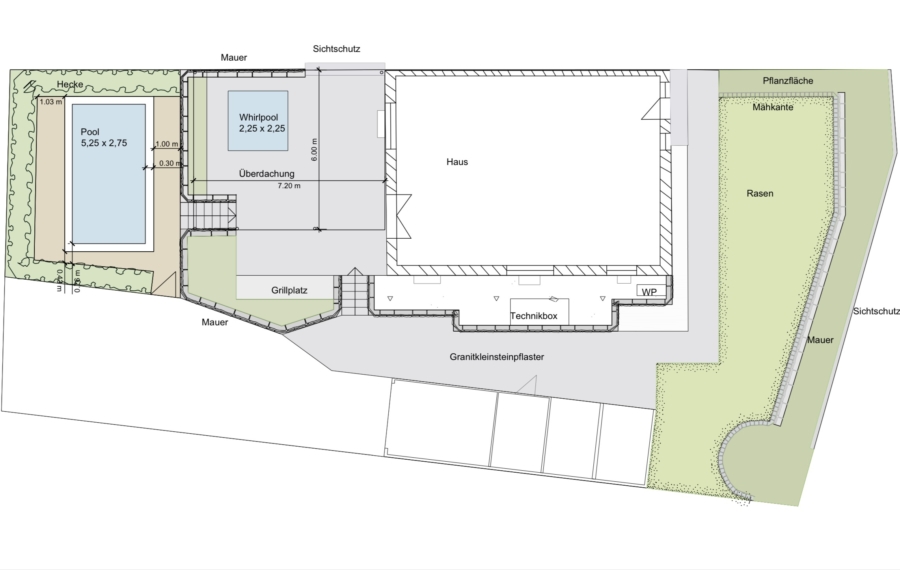
  • Große Terrasse mit Whirlpool
  • Erfrischender Pool im Garten mit Gegenstromanlage und separate Wärmepumpe

Die Immobilie befindet sich in einer ruhigen und dennoch zentralen Lage in Altdorf. Die moderne Gas-Heizung sorgt für eine effiziente und umweltfreundliche Wärmeversorgung.

Dieses gepflegte und gehoben ausgestattete Haus wartet darauf, von Ihnen bezogen zu werden. Verpassen Sie nicht die Gelegenheit, in diesem einladenden Zuhause neue Erinnerungen zu schaffen.

Ausstattung

  • Fußbodenheizung
  • Parkettboden im OG und Dachgeschoss
  • ausgebautes Dachgeschoss, circa 40 m²
  • voll unterkellert mit Hobbyraum und Abstellräumen
  • Rollläden im ganzen Haus
  • Terrasse mit Whirlpool und Lamellendach
  • Pool im Garten mit Gegenstromanlage und Wärmepumpe
  • Garage mit viel Stauraum für Gartengeräte
  • Anbau mit Tür und Überdachung
  • Stellplatz für zweites Auto
  • Wallbox mit 22 Kw
  • Solaranlage mit Speicher E3DC
  • Grünberg Enthärtungsanlage (2023)
  • Automatischer Wasserfilter

Sonstiges

Bitte haben Sie Verständnis, dass wir nur Anfragen mit vollständig angegebener Adresse und Telefonnummer bearbeiten können.

Exposé Angaben ohne Gewähr für Größe, Güte und Beschaffenheit.
Die Fotos wurden uns vom Eigentümer zur Verfügung gestellt.

Lage

Entdecken Sie Ihr neues Zuhause in der charmanten Gemeinde Altdorf, einem idealen Wohnort für Familien und Berufstätige gleichermaßen. Diese Immobilie befindet sich in einer ruhigen Wohngegend, die dennoch eine hervorragende Anbindung an wichtige Einrichtungen und Verkehrsverbindungen bietet.

Ideal für Pendler nur 30 Minuten mit dem Zug von München.

- **Zentrale Lage**: Altdorf bei Landshut liegt im niederbayerischen Landkreis Landshut. Die Gemeinde überzeugt durch ihre verkehrsgünstige Lage mit Anbindung an die B299, B11, B15 und die A92 sowie durch die Nähe zur Landeshauptstadt München und zum Flughafen München. Altdorf verbindet ruhiges Wohnen im Grünen mit urbaner Infrastruktur. Als Teil des Verdichtungsraums Landshut hat es sich von einer ehemals ländlich geprägten Gemeinde zu einem wichtigen Wohn- und Gewerbestandort entwickelt und ist besonders für Pendler, Familien und Unternehmen attraktiv.

- **Familienfreundliche Umgebung**: Die Gemeinde bietet eine Vielzahl von Schulen, von Kindergärten bis hin zu weiterführenden Schulen, die alle leicht zu Fuß oder mit dem Fahrrad erreichbar sind. Zudem gibt es zahlreiche Parks und Spielplätze, die ideale Orte für Familienausflüge und Freizeitaktivitäten bieten.

- **Einkaufsmöglichkeiten**: In Altdorf finden Sie eine breite Palette an Einkaufsmöglichkeiten. Vom lokalen Supermarkt bis hin zu spezialisierten Boutiquen – hier ist für jeden etwas dabei. Der wöchentliche Markt in der Dorfmitte bietet zudem die Möglichkeit, frische Produkte und lokale Spezialitäten zu erwerben.

Diese Immobilie in Altdorf bietet nicht nur ein komfortables Zuhause, sondern auch eine lebendige und dynamische Umgebung, die zu einem erfüllten Lebensstil beiträgt.

Die dargestellte Position der Immobilie ist nur eine ungefähre Angabe.

Direktanfrage

* Pflichtangaben
 SSL-verschlüsselt
Immobiliendaten-Import und Darstellung für WordPress: WP-ImmoMakler